ARQUITECTURA MODERNA ENVUELTA EN PIEDRA MALLORQUINA

  • 698.000€
Destacada
Porreres, España
Destacada
ARQUITECTURA MODERNA ENVUELTA EN PIEDRA MALLORQUINA
Porreres, España
  • 698.000€

Información general

  • Property type Casa
  • Tipo de propiedad
  • 4
  • Habitaciones
  • 2
  • Baños
  • 369
  • M2 construidos
  • 341
  • M2 habitables
  • 200

Descripción

Ubicada en el corazón de Porreres, en una tranquila zona urbana, esta extraordinaria propiedad se alza sobre un solar con fachada a tres calles, lo que le proporciona una luminosidad excepcional y una excelente ventilación natural. Con 369 m² construidos, la vivienda ofrece una equilibrada fusión entre la arquitectura tradicional mallorquina y las prestaciones más avanzadas de la vida contemporánea.

Construida originalmente en 1890 como bodega, la propiedad fue completamente reinventada en 2009 por un arquitecto y diseñador —actual propietario—, quien se implicó personalmente en cada fase del proyecto, desarrollando la vivienda con un nivel de detalle excepcional. El resultado es un hogar único que combina historia y modernidad, preservando su esencia original mediante la integración de materiales nobles y soluciones constructivas de alta calidad, en perfecta armonía con su entorno.

Desde el primer instante, la vivienda transmite una sensación de solidez, elegancia y equilibrio. Cada espacio ha sido concebido para ofrecer confort, amplitud y personalidad.

Espacios que inspiran 

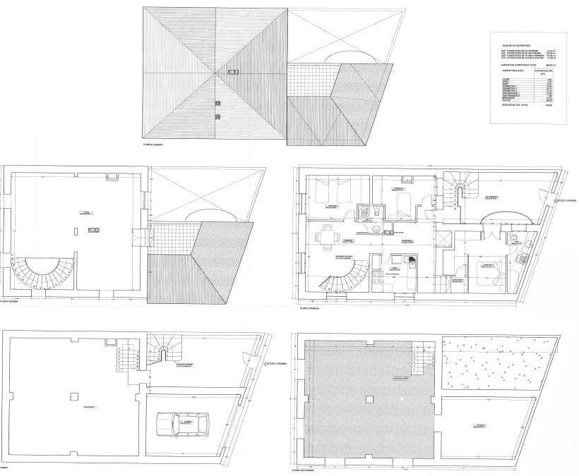
El semisótano sorprende con una atmósfera única, protagonizada por techos abovedados de marés y una imponente chimenea, con suministro directo desde el leñero con acceso desde el garaje, creando un espacio íntimo y acogedor, ideal para reuniones o momentos de desconexión. Actualmente se encuentra diáfano y, por su carácter y amplitud, se proyecta como un espacio multifuncional ideal para sala de cine, zona de yoga, lectura o área de ocio, tal y como se aprecia en los renderings incluidos en las imágenes.

La planta de acceso, con un encantador patio delantero, actúa como antesala a la vivienda, combinando funcionalidad y estética con un garaje integrado y una cuidada zona técnica perfectamente resuelta.

En la planta principal, la luz y el volumen son los grandes protagonistas. La zona de día, abierta y sofisticada, se articula en torno a una elegante doble altura. La cocina, completamente equipada e independiente, y el comedor se presentan como espacios diferenciados, ambos concebidos para crear un ambiente contemporáneo y acogedor. La zona de noche dispone de tres dormitorios, uno de ellos una distinguida suite con baño privado y bañera de hidromasaje, además de un segundo baño completo.

La planta superior, completamente diáfana y libre de pilares, ofrece un espacio versátil con acceso directo a una terraza privada, ideal como estudio, zona de trabajo o espacio de relax. En los renderings se presenta como una zona polivalente que puede destinarse a área de juegos, estudio infantil, atelier artístico o despacho creativo.

Tecnología, eficiencia y confort

  • Sistema eléctrico domótico integral con control por zonas
  • Ascensor de diseño en acero inoxidable con múltiples accesos
  • Climatización frío/calor mediante fancoils y conductos
  • Estores y persianas eléctricos
  • Preinstalación de sistema de seguridad (detectores y cámaras)
  • Posibilidad de instalación de placas solares en cubierta, con conexión directa al cuadro superior
  • Suministros generales de agua y electricidad

Construcción y materiales de alto nivel

La vivienda ha sido ejecutada con una combinación de materiales tradicionales y soluciones técnicas avanzadas:

  • Fachadas de piedra natural mallorquina y marés
  • Sistemas constructivos con aislamiento térmico y acústico mediante piedra volcánica, fibra de vidrio y soluciones multicapa
  • Estructura de hormigón armado con refuerzos perimetrales
  • Cubierta con aislamiento, lámina asfáltica y teja árabe tradicional
  • Espacios técnicos diseñados para máxima eficiencia

Una propiedad con historia y carácter

Una vivienda única que combina historia, arquitectura y tecnología, manteniendo la esencia de su origen como bodega del siglo XIX y reinterpretada con maestría por un arquitecto local.

Se vende sin muebles, ofreciendo la posibilidad de personalizar cada espacio al gusto del nuevo propietario, convirtiéndola en una oportunidad excepcional tanto como residencia habitual como inversión singular en Mallorca.

Detalles

  • Precio: 698.000€
  • Año de contrucción: 2009
  • Cédula de habitabilidad: 002358/2020

Video

Distribución de plantas

image

Descripción:

Clasificación energética

  • Clase energética: D
  • Rendimiento Global de Energía: 25,7
  • Índice del desempeño de la enegía renovable: 87,3
  • Desempeño de la enegía del edificio: D
  • Clasificación actual del CPE / EPC: D
  • Valoración potencial CPE / EPC: D
  • A+
  • A
  • B
  • C
  • 25,7 | Clase energética D
    D
  • E
  • F
  • G
  • H
  • En Trámite

Comparar listados

Comparar
Carla Maria Garcia Lefevre HOUSE
  • Carla Maria Garcia Lefevre HOUSE